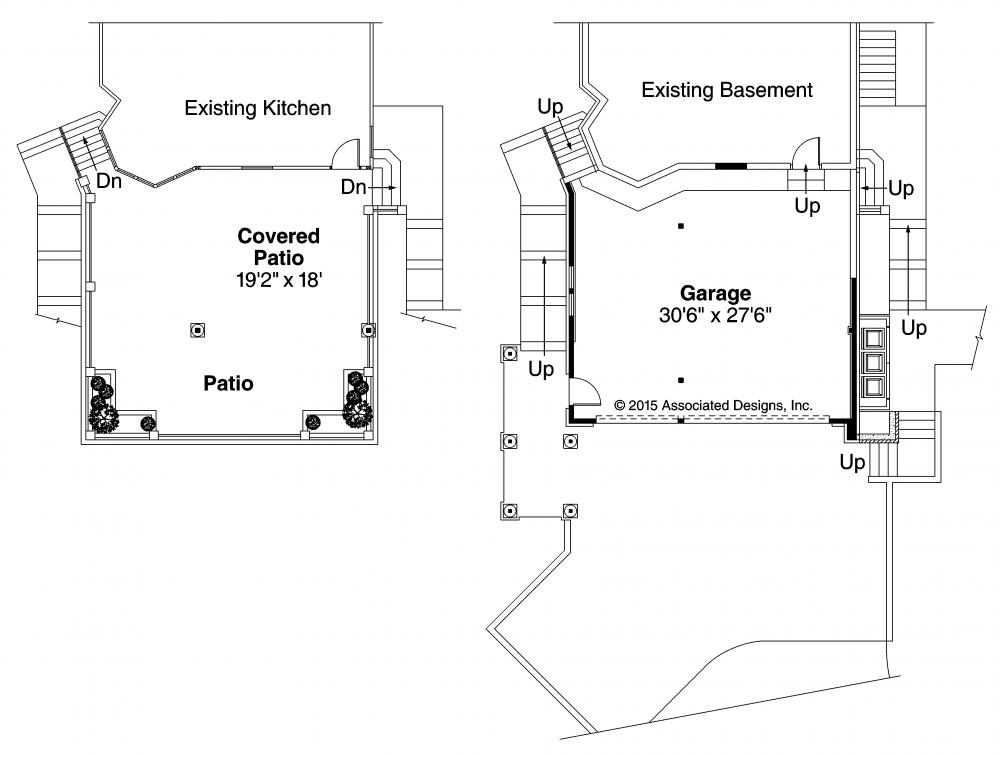
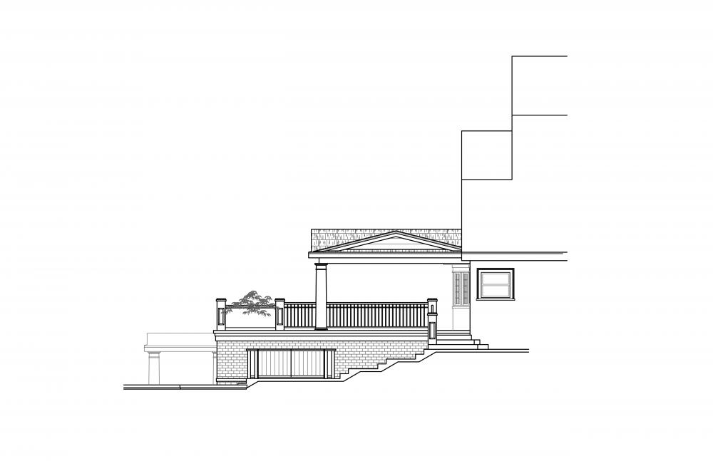
Remodel work on a special vintage home built in 1901.

Adding a new garage and outdoor living.

Residential Type

Remodel

Looking forward to working on this great house again!! Demo of existing garage, new garage with outdoor living areas. Plans by Associated Designs

Adding a new garage and outdoor living. Adding a new garage and outdoor living. Adding a new garage and outdoor living. Before Before Demo Before Before before