Residential Type
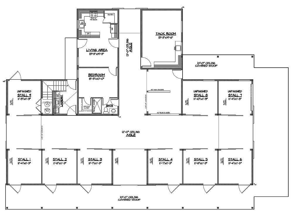
This custom 9-stall equestrian facility was one of the coolest outbuildings we have ever built. All of the custom details and well-thought ideas will make this structure useful for generations. Any of you horse people out there know that you don't just "kind of" have horses - they're a full time job and take a lot of work. So, why not make that work a little less... worky? The stainless walls with concrete below will take a pretty good kickin' and allow enough room to safely manage some of those tough jobs. The custom stall doors allow for easy feeding and watering but aren't too heavy to maneuver. Truck-full-of-feed-sized doors also make stocking up for the winter and utilizing all of the storage a snap.
To see the magnificent home that went along with this equestrian facility, check out the album on our Facebook page! You can also see more in our Residential Homes gallery.



